
【家づくりの先輩インタビュー】性能はあまり重視していなかった一家が建てた大満足の高気密で高断熱の家。
想像していなかっただけに、喜びも倍増!?
家づくりの感想を聞きました!
◎家づくりのきっかけは?
お花のリース等を取り付けられるのでとても気に入っています。
リビングをすっきり使いたいので、空いているスペースはすべて収納に。
◎間取りについて
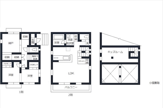
思い切って2階リビングにしたので、日差しがたっぷりと降り注ぐのでよかったです。
生活動線を短く計画したので、生活のほぼすべてを2階で済ませられます。
リビングをすっきり使いたいので、空いているスペースはすべて収納に。
玄関脇にもコートやカバンを置くスペースを造りました。
↑ ダイニングの上にあるロフト部分がキッズルーム。
↑ 水回りは「ゆったり」をキーワードに設計。
2階リビングで、日差しが長い時間入るため、明るい。冬でも常温が23℃の暖かさです。エアコンは、冬の朝イチに2時間ほど寒い時だけつけます。夏にエアコンを28℃でつけていると寒く感じるほどです。
実家隣の土地が売りに出たのがきっかけ。
最初は、既成型住宅を建てようかと思っていたけど、注文でも作れることが分かりスーモカウンターへ行きました。
◎工務店を決めた決め手は?
スーモカウンターでは数社を紹介してもらったけど、決めた理由は、狭小住宅を扱っていることと、地元であることでした。
しかも、三陽工務店さんはハウスメーカー以上に断熱性能が高く、コストが他社を比較した中でも圧倒的に低かったからです。
さらにカビを抑制する壁体内通気工法は、子供を育てる立場で重要にしないわけがありませんでした。
また。子どもがまだ小さかったので、何度も打ち合わせをすることを考えると、地元の工務店がいいと思いました。
ほかにも、坪数や予算に制約がある中で、固定階段で小屋裏に上がれる間取りを描いてくれたことが三陽工務店にした決め手でした。
◎対応は?
右も左も分からない僕たちに、性能の話をとても分かりやすく説明してくれたセミナーが理解に非常に役に立ちました。
建てている最中もよく相談に乗ってもらいました。対応の早さが安心感につながりましたね。
◎外観について
外観はシンプルにこだわりました。
玄関ドアには、ディズニー好きな娘さんのためにサプライズでつけたオーナメント。
◎間取りについて
思い切って2階リビングにしたので、日差しがたっぷりと降り注ぐのでよかったです。
生活動線を短く計画したので、生活のほぼすべてを2階で済ませられます。
玄関脇にもコートやカバンを置くスペースを造りました。
固定階段で上がることができ、子どもたちの笑い声がニッチから聞こえて安心。
キッチンは、子どもたちと並んで入ることもできます。明るい対面キッチンに満足しています。
◎住み心地は
無垢の床は、冬は暖かく、夏はサラッとしている。裸足率があがりました(笑)
子どもたちは床にじかに座って遊んでいます。
◎家づくりを終えた感想は?
人の集まるリビングがつくりたかったので、とても満足しています。性能も住み心地も満足です。子供たちがのびのび遊べて、笑いの絶えない理想のリビングになりました。